Stavební pozemek s projektem malého domku včetně stavebního povolení v Těšovicích u Sokolova
Nabízíme k prodeji stavební pozemek o celkové výměře 275 m², situovaný v klidné části obce Těšovice s výbornou dostupností do okresního města Sokolov s kompletní občanskou vybaveností.
Pozemek je ideální pro klienty, kteří hledají úsporné a minimalistické bydlení v rekreačním objektu s nízkými náklady na výstavbu i pozdější provoz.
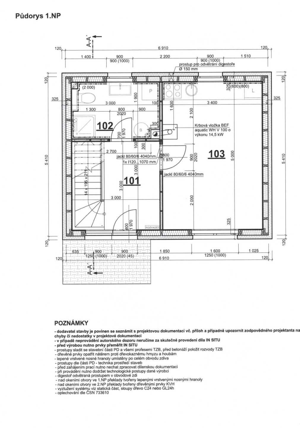
Součástí nabídky je kompletní projekt se stavebním povolením pro nízkonákladový objekt o zastavěné ploše 40,40 m². Jedná se o nepodsklepenou, jednopodlažní stavbu s půdním prostorem, která je navržena s ohledem na efektivní využití prostoru.
Projekt počítá s těmito místnostmi:
Obývací pokoj s kuchyňským koutem – 17 m²
Koupelna s WC – 5,7 m²
Zádveří – 9 m²
Půdní prostor využitelný jako úložný či relaxační
Inženýrské sítě:
Připojení na veřejný vodovod
Veřejná kanalizace
Elektrická přípojka 230 V je již na pozemku vybudovaná
Pro nízké náklady na vytápění je projekt počítán s využitím kvalitní teplovodní krbové vložky BEF AQUATIC WH V 100, která má integrovaný teplovodní výměník pro rozvod tepla do otopného systému. Tato vložka je navržena pro efektivní a čisté spalování dřeva s výkonem vhodným právě do menších objektů, a díky výměníku lze teplo s vysokou účinností využít i pro ohřev vody či topení domu.
Součástí projektu je i samostatný dřevník o zastavěné ploše 11 m², který je na pozemku již hotový – ideální pro uskladnění palivového dřeva nebo zahradního nářadí.
Těšovice – klidné a příjemné místo s dobrou dostupností do Sokolova a napojením na hlavní komunikace. Výborné místo pro ty, kteří chtějí kombinaci venkovského klidu a dostupnosti služeb města.
Další informace
|
|
David Veršecký |
|
| 775604327 david@rk-sedlacek.cz |
|
|








