Dům se studií na 6 apartmánů Rotava – Krušné hory
Nabízíme k prodeji dům v obci Rotava (ul. Hornická), určený ke kompletní rekonstrukci, se zpracovanou studií na vybudování apartmánového domu o 6 jednotkách.
Dům se nachází v lokalitě bývalé hornické zástavby. V sousedství jsou obydlené domy s trvalými majiteli, nemovitost je tak vhodná nejen pro investiční záměr, ale i pro vlastní bydlení či kombinaci obojího.
Dům je připraven k rekonstrukci:
- vyklizený
- staticky zajištěný
- nová střešní konstrukce
K domu náleží oplocená zahrada, která je v současnosti užívána na základě nájemní smlouvy s městem.
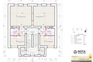
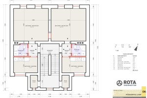
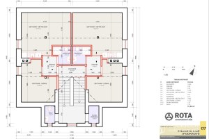
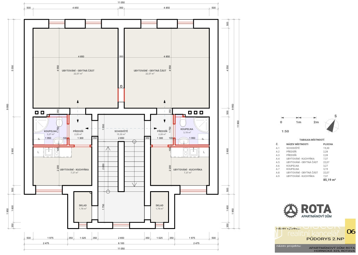
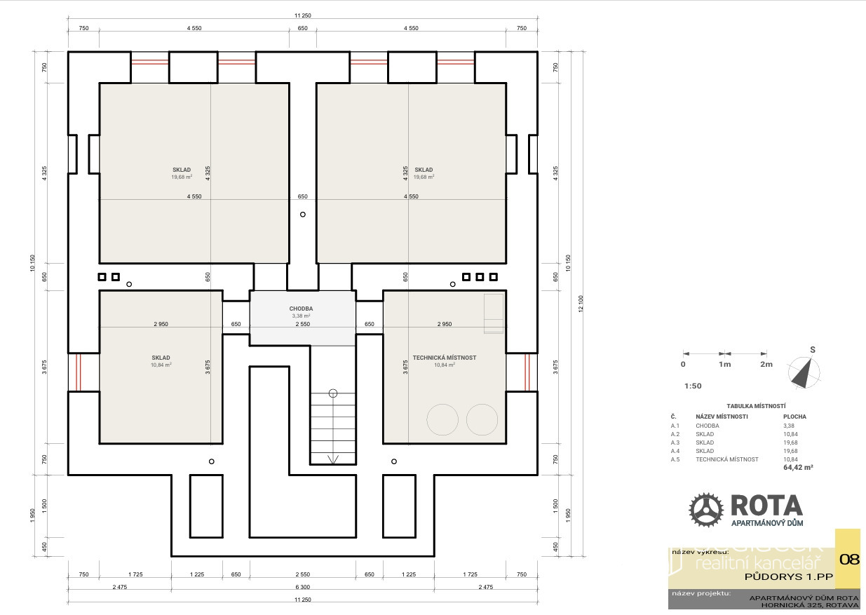
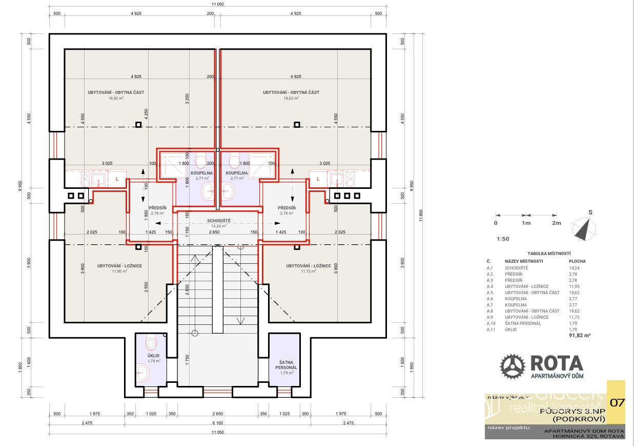
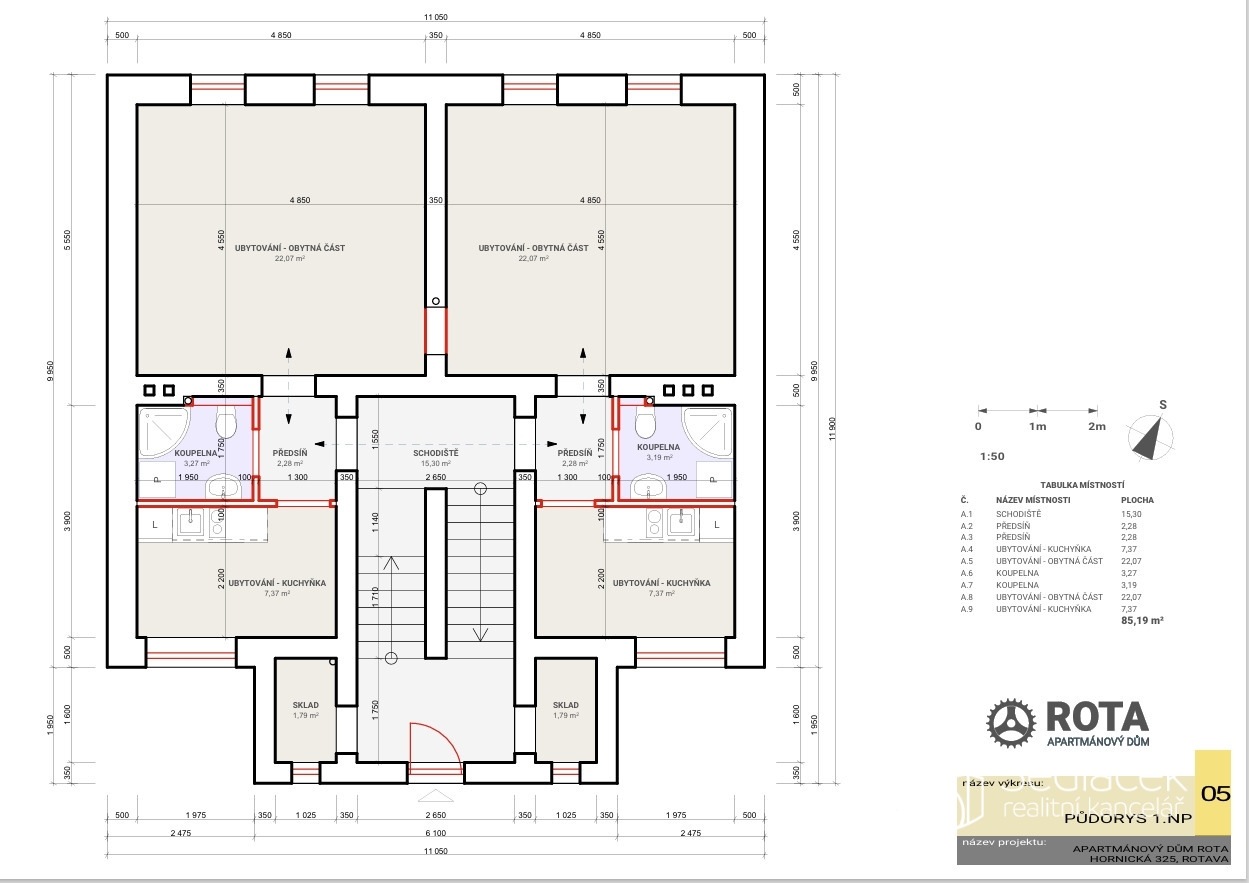
Součástí nabídky je projektová studie apartmánového domu:
- 6 samostatných apartmánů (2 na každém podlaží)
- kapacita cca 24 lůžek
- užitná plocha cca 326 m²
Lokalita Krušných hor nabízí celoroční využití lyžařský areál Bublava , běžkařské trasy Přebuz, dojezd do Kraslic a Německa (Klingenthal) vše cca 10 min.
Prohlídky jsou možné po domluvě. Podklady a studie k dispozici na vyžádání.
Další informace
|
|
Ing. Štěpánka Sedláčková Lepičová |
|
| 774604327 stepanka@rk-sedlacek.cz |
|
|



















